結果発表
プロポーザル部門 佳作 青木怜
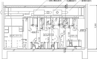
平面
カフェの中に一方向の気流をつくり,風上と風下をつくる.無数の風車がその気流の速度や向きを視覚化する.気流の流れを見ながら,他の人との距離やたばこの煙の行方に気を配りながら,好きな場所を選ぶ. カフェに溢れるものの,大きさや量や配置の仕方をほんの少し変えるだけで,分煙カフェになればと思っていた.分煙カフェでも, そう見えないくらいがいい.
2次案でも考え方は変わらない.既存のカフェは天井が剥がされ,ダクトや機器類が露出し,色々なものが混在していて,街の空気によく馴染んでいる.カフェの質を決めているこうした存在を変えたくない.だから空調の吹き出しと吸い込みは,天井のダクトがそのまま垂れ下がっているようにつくり, 生まれる気流の向きは,そもそもここを流れる自然風の向きに合わせることにした.
断面詳細

室内イメージ
模型